Skip to content

Free Printable Rental Lease Forms

  • by

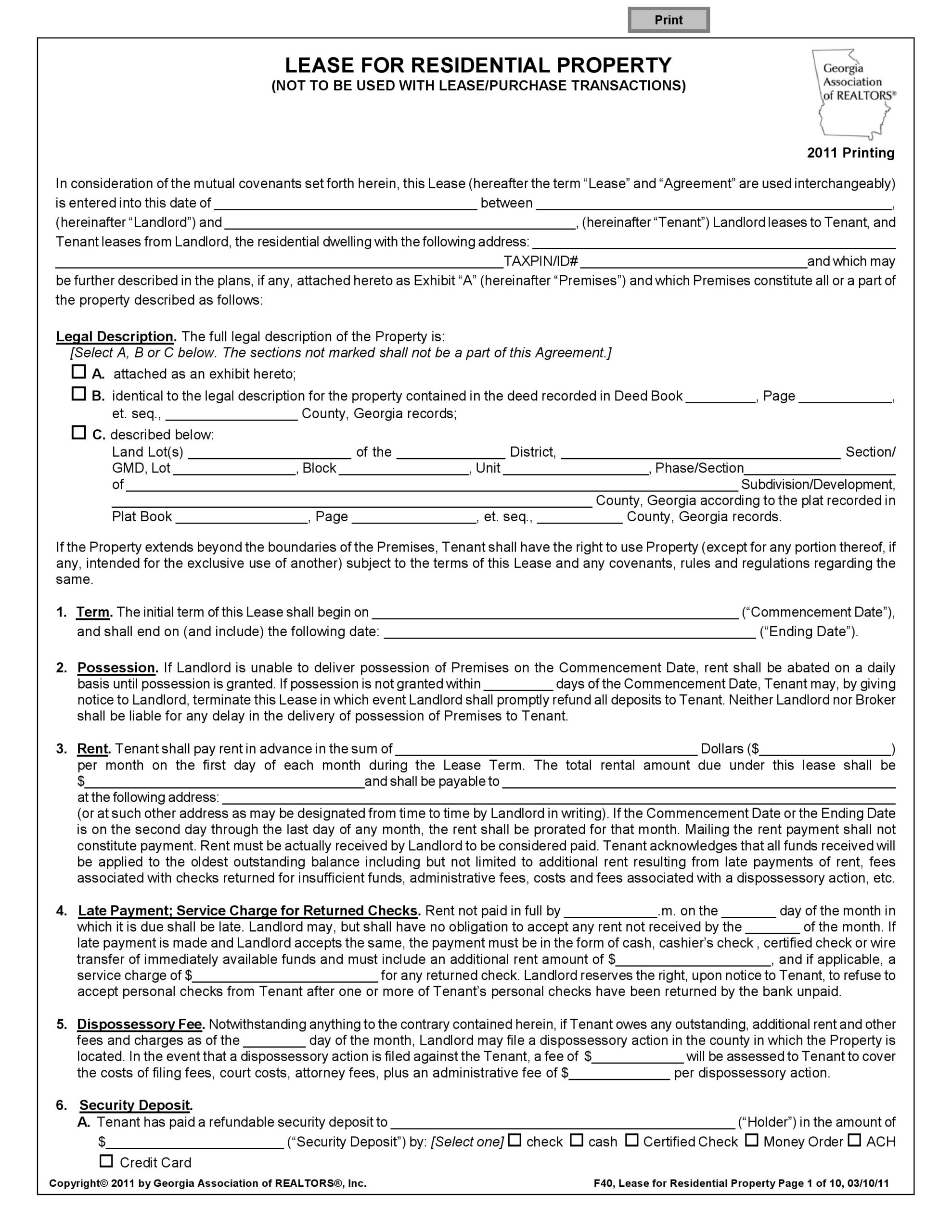
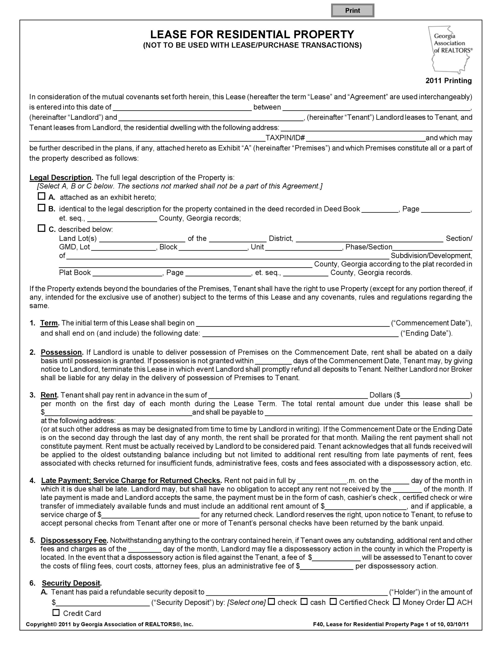
Renting a property can be a daunting task, but having a solid rental lease agreement in place can provide peace of mind for both landlords and tenants. Finding the right lease form that meets all legal requirements can be time-consuming and expensive, which is why free printable rental lease forms are a great resource for anyone entering into a rental agreement.

Free printable rental lease forms are readily available online and can be easily customized to suit your specific needs. These forms typically cover important details such as rent amounts, lease duration, security deposits, and any rules or regulations that both parties must adhere to. By using a reliable and legally sound lease form, both landlords and tenants can ensure a smooth and transparent renting process.

Rental Agrrement Tesidential Free Printable Forms Printable Forms Free Printable Rental Lease Forms

Need a quick and reliable way to process documents? A Form Printable is the ideal answer! Whether you’re managing office files, school documents, or private records, Printable Form help you stay organized without relying on software.

Streamline Your Workload with a Printables Form – Instant, Easy, and No-Cost

From job applications to financial logs and medical records, you can find free printables form on trusted sites for almost any situation. Just access, print, and fill them out manually—no required programs required.

When using free printable rental lease forms, it’s important to carefully review and understand all the terms and conditions outlined in the document. Make sure to fill in all required information accurately and ensure that both parties sign the agreement before the tenancy begins. This will help avoid any misunderstandings or disputes down the line and protect the rights of both parties.

In addition to the basic details of the rental agreement, free printable lease forms can also include provisions for maintenance responsibilities, pet policies, and any additional fees or charges that may apply during the tenancy. Having all these details clearly spelled out in writing can prevent any confusion or disagreements between landlords and tenants and help maintain a positive and professional relationship throughout the rental period.

Overall, free printable rental lease forms are a valuable tool for both landlords and tenants looking to establish a clear and legally binding rental agreement. By using these forms, both parties can protect their rights and obligations and ensure a smooth and stress-free renting experience. Whether you’re a first-time landlord or a seasoned tenant, having a comprehensive lease agreement in place is essential for a successful rental relationship.

So, next time you’re in need of a rental lease agreement, consider using a free printable form to save time and money while still ensuring that all necessary details are covered. With a well-drafted lease form in place, both landlords and tenants can enjoy a worry-free renting experience.


Easily Download and Print Free Printable Rental Lease Forms

printable forms are especially useful for businesses, schools, and people who prefer paper-based documentation. They’re also ideal for scenarios where no internet is available or when physical signatures are needed.

With constantly refreshed templates available in DOC or PDF format, Printable Form are both versatile and simple to fill. Don’t waste time creating documents from scratch—search for the right printables form today and boost your productivity!

Rental Agreement Forms Free Printable Printable Forms Free OnlineRental Agreement Forms Free Printable Printable Forms Free Online

Home Lease Agreement Forms Printable Printable Forms Free OnlineHome Lease Agreement Forms Printable Printable Forms Free Online

Printable Lease Agreement Forms Pdf Printable Forms Free OnlinePrintable Lease Agreement Forms Pdf Printable Forms Free Online

Rental Lease Forms Free Printable Printable Forms Free OnlineRental Lease Forms Free Printable Printable Forms Free Online

Free Printable Rental Lease Forms Printable Forms Free OnlineFree Printable Rental Lease Forms Printable Forms Free Online