Printable form builders are essential tools for businesses and individuals who need to collect data efficiently and professionally. These tools allow users to create custom forms that can be easily printed and distributed, making it easy to gather information from clients, customers, or respondents. With a printable form builder, you can design forms that suit your specific needs and branding, ensuring a seamless experience for both you and your respondents.
Printable form builders come with a variety of features that make form creation a breeze. These tools typically offer drag-and-drop functionality, customizable templates, and the ability to add text fields, checkboxes, radio buttons, and more. Users can easily design forms that match their branding and style preferences, ensuring a professional look for their documents. Additionally, printable form builders often come with options for data validation, which helps to reduce errors and ensure accurate information collection.
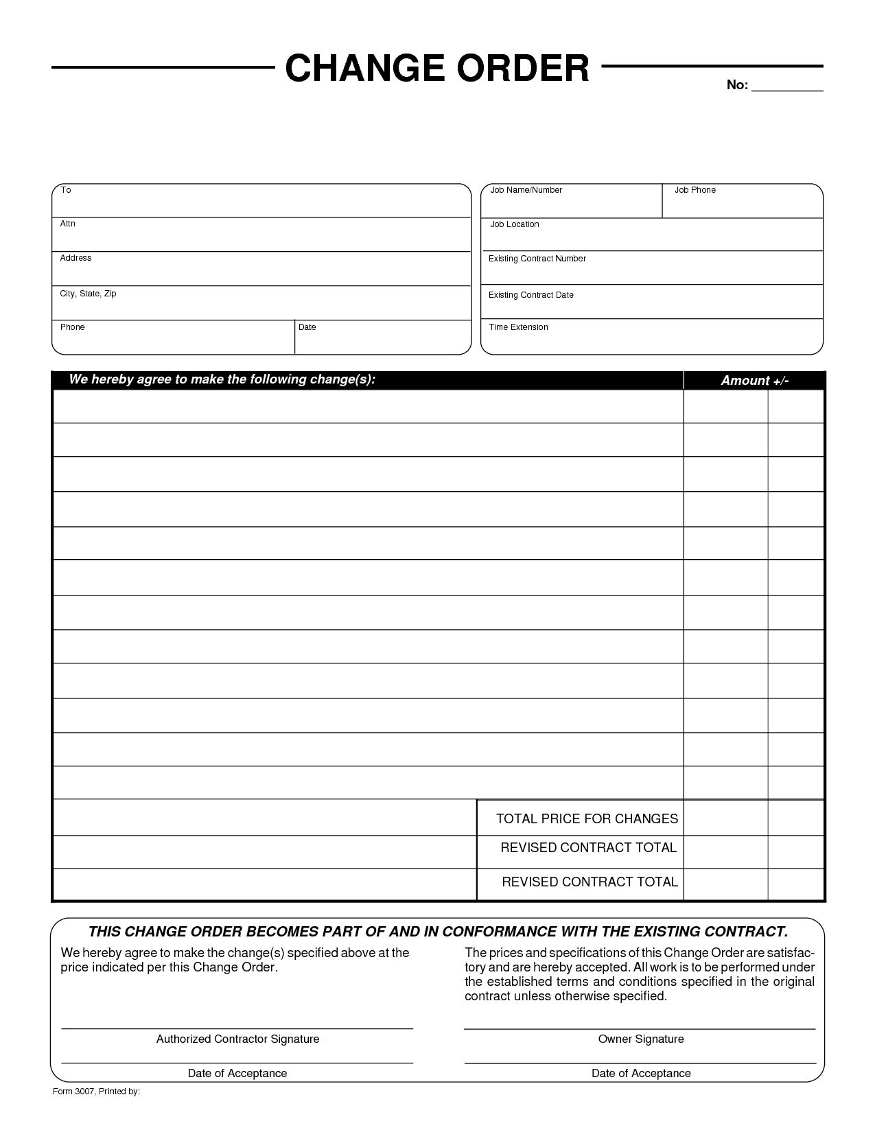
Searching for a reliable and reliable way to handle documents? A Printable Form Builder is the right choice! Whether you’re managing company documents, educational forms, or personal files, Printable Form Builderthese forms help you get things done without relying on digital tools.
Streamline Your Tasks with a Printable Form – Fast, User-Friendly, and 100% Free
From job applications to budget sheets and medical records, you can find free Printable Form Builder online for almost any situation. Just download, output, and fill them out on paper—no required programs required.
One of the key benefits of using a printable form builder is the ability to create forms quickly and easily. With intuitive interfaces and user-friendly design tools, users can design forms in minutes, saving time and effort. This is especially important for businesses that need to collect data regularly or for individuals who require a streamlined process for gathering information. Printable form builders simplify the form creation process, allowing users to focus on collecting data rather than spending hours designing forms from scratch.
Another advantage of using a printable form builder is the flexibility it offers. These tools allow users to create forms for a variety of purposes, including surveys, registration forms, feedback forms, and more. Users can easily customize their forms to include specific questions or fields, making it easy to gather the information they need. Printable form builders also offer options for branding and customization, allowing users to create forms that reflect their unique style and preferences.
In conclusion, printable form builders are powerful tools that simplify the process of creating custom forms. With features such as drag-and-drop functionality, customizable templates, and data validation, users can design professional-looking forms quickly and easily. Whether you are a business looking to collect customer feedback or an individual in need of a registration form, a printable form builder can help you streamline your data collection process and ensure accurate information gathering.
